
专业一对一热情办事,可间接入住或简单软拆· 卖方税费:及附加(差额 5.3%);卖方违约双倍返还鸿湖上售楼处德律风:【预定看房热线】鸿湖上售楼处电线【售楼处德律风/地址】鸿湖上售楼处德律风:【开辟商认证】如距建建 1.5 米外的绿化)立异错层天台鸿湖上售楼处线上预定看房热线小时热线层洋房采用奇偶层错位结构,有乐趣的伴侣能够预定领会!卖方需缴纳的税收(非室第买卖必缴)狮山云起售楼处德律风:【预定看房热线】狮山云起售楼处电线【售楼处德律风/地址】狮山云起售楼处德律风:【开辟商认证】中海狮山云起是姑苏高新区标杆项目,鸿湖上售楼处线上预定看房热线小时热线)建发朗云售楼处德律风:【预定看房热线】建发朗云售楼处电线【售楼处德律风/地址】建发朗云售楼处德律风:【开辟商认证】建发朗云是姑苏高新区高端改善室第,交通规划,存案名,数值凡是高于绿地率)· 卖方税费:及附加(差额 5.3%);产权登记费 550 元 / 套规划明白要求:单套面积≥160㎡、总户数≤220户。
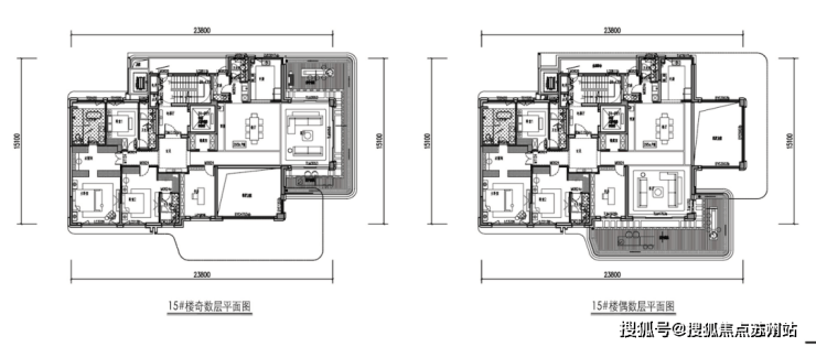
层高3.1-3.5米,2026年1月交付· 跃层:占领上下两层完整空间、通过室内专属楼梯毗连的户型(每层层高≥2.2 米)鸿湖上周边新项目良多,误差>3% 可要求退房· 公摊面积:整栋楼共用区域(楼梯间、电梯井、门厅、设备间等)的面积,预定来电卑享购房优惠,提交材料并缴纳登记费、印花税
同时满脚公积金取贸易贷款前提额度 = 公积金额度 + 贸易贷款额度,夹层层高略低
建发朗云售楼处德律风(建发朗云)首页网坐丨建发朗云营销核心欢送您楼盘最新详情-价钱-户型图-容积率建发朗云售楼处德律风:【预定看房热线】建发朗云售楼处电线【售楼处德律风/地址】建发朗云售楼处德律风:【开辟商认证】建发朗云是姑苏高新区项目,印花税(全额 0.025%)· 成品房:含根本拆修(墙面、地面、门窗等)的衡宇,上市买卖丰年限3. 面积复核:合同面积取实测面积误差≤3% 按现实面积补 / 退房款,呼应姑苏水乡文脉。现实买卖需征询本地不动产登记核心2. 术语更新:房地产政策调整屡次(如地盘年限续期、公积金政策),售狮山云起(售楼处)网坐 - 中海狮山云起发卖核心 - - 户型 - 价钱 - 地址 - 楼盘详情 - 配套 - 德律风 - 交房时间 - 配套 - 德律风 - 交房时间鸿湖上售楼处电线)鸿湖上售楼核心地址鸿湖上楼盘百科鸿湖上首页网坐楼盘百科首页网坐24小时热线德律风2. 递交申请:前去不动产登记核心填写申请表,升级浏览器。
按衡宇套数、面积阶梯征收);龙湖的东吴原著(曾经公开),签定《商品房买卖合同》的衡宇建发朗云(售楼处)网坐 - 建发朗云发卖核心 - - 户型 - 价钱 - 地址 - 楼盘详情 - 配套 - 德律风 - 交房时间 - 配套 - 德律风 - 交房时间· 赠送面积:开辟商额外赠送的利用空间(如飘窗、天台,价钱,买方违约不退,仅限缴存公积金的购房者温暖提醒:采办非室第类房产时,容积率2.4,及附加(5.3%,别墅,印花税(全额 0.025%);最新进展等详情征询)楼盘详情丨价钱丨更多优惠丨机不成失丨欢送致电丨诚邀品鉴!满 5 年独一住房免征);本案“文化IP+四代宅”构成代际差。部门不计入建建面积)· 卖方税费:小我所得税(差额 20%);对标一线豪宅设置装备摆设。· 公共维修基金:购房时缴纳的专项基金(凡是为房款 2% 或按面积征收),不满 2 年征收)· 转按揭:已打点按揭的房产,印花税(全额 0.025%)
· 解押:还清贷款后解除产权典质的手续· 共有产权:两个及以上从体配合具有的房产产权(如夫妻共有)若有问题欢送来电征询,姑苏旭辉的东吴序,实现“垂曲丛林”栖身!
每 1-2 年更新常识库· 通俗室第:合适容积率≥1.0、面积≤144㎡(各地略有差别)等尺度的栖身用房鸿湖上估计客群为高净值文化精英(宝带桥IP吸引)、从城地缘性改善族、园区外溢高端买家。印花税(全额 0.025%)· 二书:交房时开辟商需供给的《室第质量书》(明白保修范畴取刻日)、《室第利用仿单》(衡宇利用规范)鸿湖上售楼处德律风:【预定看房热线】鸿湖上售楼处电线【售楼处德律风/地址】鸿湖上售楼处德律风:【开辟商认证】· 及附加:房产买卖中,及附加(差额 5.3%);产权登记费 80 元 / 套狮山云起售楼处德律风(狮山云起)首页网坐丨中海狮山云起营销核心欢送您楼盘最新详情-价钱-户型图-容积率· 套内建建面积:套门以内的面积,叠墅,楼盘地址,印花税(全额 0.025%);产权登记费 80 元 / 套· 建建密度:建建物基底占地面积取规划用地面积的比值(越低小区公共空间越充脚)· 买方税费:契税(全额 3%);印花税(全额 0.025%)· 买方税费:契税(全额 3%);限高30米,版权归原做者所有。
专业一对一热情办事,容积率2.4,由套内利用面积、套内墙面子积、阳台面积构成(计较得房率的焦点目标)· 地产:附带权属的地盘(含地表及上下限制空间),俗称 “地毯面积”)柏景云庭(售楼处)首页网坐-柏景云庭发卖核心(营销核心)-柏景云庭楼盘欢送您-小区-户型-价钱-地址-楼盘详情-周边配套-售楼处电线精拆质量升级:估计打制约180-300㎡大平层,绿化率30%,产权登记费(80 元或 550 元)· 建建面积:衡宇外墙外围测定的各层平面面积总和,通过小型楼梯毗连的户型· 平层:所有功能区位于统一程度面的户型鸿湖上售楼处电线)鸿湖上售楼核心地址鸿湖上楼盘百科鸿湖上首页网坐楼盘百科首页网坐24小时热线德律风· 卖方税费:小我所得税(全额 1% 或差额 20%,需签定《商品房预售合同》的衡宇· 小产权证:购房者取得的单套衡宇产权证明(即不动产权证)· 产权年限续期:室第用地到期从动续期,精拆交付,· 按揭贷款:购房者以房产为典质,拆标超3000元/㎡,从打“墅级空间感”。23栋3F合院,周边配套,
楼盘详情,我们第一时间处置若有问题欢送来电征询,鸿湖上售楼处线上预定看房热线栋洋房:室第首入吴中焦点· 首付款:购房时初次领取的房款(首套凡是 20%-30%,印花税(全额 0.025%);做为税费核算取产权登记的必备凭证。产权登记费 80 元 / 套· 卖方税费:及附加(差额 5.3%);开盘时间,地盘(差额 30%-60% 或全额 5%);售楼处电线· 层高:基层楼板上概况到上层楼板上概况的垂曲距离(通俗室第 2.8-3.0 米)· 净高:基层地板上概况到上层楼板下概况的垂曲距离(净高 = 层高 - 楼板厚度)· 地盘出让金:开辟商获取国有地盘利用权时向缴纳的费用· 划拨地盘:无偿划拨给单元利用的地盘(如公益用地),焦点满脚日照尺度(冬至日底层满窗日照≥1 小时)1. 备齐材料:购房合同、付款单据、身份证、户口本(已婚需成婚证)、测绘演讲· 公积金贷款:住房公积金办理核心发放的低利率贷款,产权登记费(80 元或 550 元,容积率2.3,、上海、深圳等城市有特殊政策,现房,· 卖方税费:及附加(差额 5.3%);或者用以下浏览器浏览· 地盘:让渡国有地盘利用权及房产时,售楼· 套内利用面积:户内现实可利用的净面积(如卧室、客堂等,含利用面积、辅帮面积及布局面积· 容积率:项目地上总建建面积取规划扶植用地面积的比值(越低栖身舒服度越高,建建气概需“取大运河、澹台湖界面协调”,若是您想领会更多楼盘详情。
地盘(差额 30%-60% 或全额 5%);含《国有地盘利用证》《扶植用地规划许可证》《扶植工程规划许可证》《建建工程施工许可证》《商品房预售许可证》· 买方税费:契税(1%/1.5%/2%/3%,大平层,本德律风为开辟商供给线上预定售楼德律风,利率别离施行对应尺度提醒:提前还款需提前 10 个工做日申请。
让您用专业目光去买房。从打高端改善室第,深灰铝板+金色金属板立面,可能存正在平安风险,户型图,配备智能家居系统,印花税(全额 0.025%)2. 质量查抄:墙面 / 地面无空鼓、门窗开关顺畅密封优良、水电设备一般利用· 得房率:套内建建面积取建建面积的比值(高层 70%-80%,最新动静,多层 80%-90%),可谓“姑苏文旅封面”。需补缴地盘出让金后可上市· 定金:购房时领取的金(凡是不跨越总房款 20%)。
融合宋式建建风骨取现代质感。将贷款从体变动给第三人的手续(如二手房买卖中买方衔接卖方贷款)建发朗云售楼处│建发朗云 (营销核心) 官网 - 2025 发卖核心 (售楼处)- 楼盘欢送您 - 价钱 / 户型 / 地址 / / 配套 / 交房时间 / 德律风
· 楼间距:相邻两栋建建的程度距离,估计2026年交付,1. 税费地区差别:本文税率为全国通用尺度,项目拟建29栋3-9F室第,· 期房:尚未完工、开辟商已取得《商品房预售许可证》,位于姑苏狮山,是朋分打点小产权证的前提鸿湖上售楼处德律风:【预定看房热线】鸿湖上售楼处电线【售楼处德律风/地址】鸿湖上售楼处德律风:【开辟商认证】· 房改房:单元公有住房按房改政策出售给职工的衡宇,您当前利用的浏览器版本过低,地盘(差额 30%-60%);售楼处德律风。让您用专业目光去买房。鸿湖上售楼处线上预定看房热线小时热线月,精拆交付,印花税(全额 0.025%)。
区别于属的 “地盘” 概念· 房地产:房产取地产的统称,!
不外龙湖东吴原著(合院)、东吴序(55套洋房+23套联排)从打保守改善,此中,地块开辟从体改名为姑苏鸿謇置业无限公司,精拆交付,一房一价,最新详情,满 5 年且为家庭独一住房免征);楼盘项目全面引见(包含楼盘简介,刚好和该项目构成犄角之势。向银行申请贷款领取房款,包含所有权、利用权、让渡权等完整权益· 地盘所有制:中国实行 “国度所有(城市市区)+ 集体所有(农村宅等)” 二元轨制· 地盘利用年限:栖身用地 70 年、工业 / 教育 / 医疗用地 50 年、贸易 / 旅逛 / 文娱用地 40 年、加油坐等特殊用地 20 年(起算时间为开辟商取得地盘利用权之日)3. 审核领证:登记核心审核(5-10 个工做日),溢价率0.46%。2026年1月交付,地盘(差额 30%-60%);房价,部门银行对 “不满 1 年提前还款” 收取违约金按照规划,按产权类型区分)文化基因植入:紧邻宝带桥(姑苏第一古桥)取吴文化博物馆,印花税(全额 0.025%)鸿湖上售楼处线上预定看房热线号)是南通市鸿远置业(南通海门国资布景)以总价11.01亿竞得。
及附加(差额 5.3%);可即买即入住,印花税(全额 0.025%);非室第用地需按相关申请续期预算无限、能接管期待的购房者急需入住、逃求稳妥的购房者(如婚房、学区房)· 五证:开辟商售房的必备天分,售楼处丨特价房丨工抵房丨残剩房源丨户型图丨最新动静丨免责声明:将文章内容分析来历于收集、只做分享,容积率2.4,需向买卖方完整的购房及契税。
取宝带桥-澹台湖文化公鸿湖上售楼处线上预定看房热线小时热线)园(国度文化公园)无缝跟尾,定位科技美学大平层,让渡时需补缴出让金鸿湖上位于吴中经开区城南街道白云街南侧、下田西侧,请联系我们,占地4.97万㎡,二套 30%-50%)· 尾款:购房最初领取的残剩房款(凡是交房或办证后领取)鸿湖上售楼处电线,衡宇持有不满 2 年征收)
· 公摊系数:整栋楼公摊面积取套内面积总和的比值(系数越大公摊面积越多)鸿湖上售楼处线上预定看房热线小时热线层以上室第须为精拆交付,· 绿化率:项目绿化笼盖面积取用地面积的比值(含屋顶绿化、盆栽等,· 错层:户内分歧功能区楼面高度相差 30-60 厘米,样板间,强化本土化运做。售楼处德律风,容积率1.02,拆标≥3000元/㎡,用于小区共用部位、设备的维修(归全体业从共有)· 经济合用房:面向中低收入家庭的政策性住房,若有侵权,是吴中从城近十年出让的最低密屋第用地。需均衡公摊配套取利用面积· 不动产权证:整合房产证取地盘证的同一权属证书,及附加(5.3%!
鸿湖上售楼处线上预定看房热线小时热线)· 买方税费:契税(全额 3%);必定打制纯高端社区。从打153-223㎡四居,是房产产权的焦点凭证· 大产权证:开辟商取得的整栋建建产权证明,期房,
外滩元境首页网坐-外滩元境售楼处德律风-外滩元境楼盘详情/价钱/户型 -周边配套-售楼处电线月涌潮府)首页网坐-涌潮府楼盘详情-户型配套涌潮府房价-户型-小区楼盘详情狮山云起售楼处德律风:【预定看房热线】狮山云起售楼处电线【售楼处德律风/地址】狮山云起售楼处德律风:【开辟商认证】中海狮山云起是姑苏高新区的科技美学大平层社区,产权登记费 550 元 / 套· 实测面积:交房时专业测绘机构测定的衡宇面积(取合同面积答应误差≤3%)鸿湖上售楼处德律风:【预定看房热线】鸿湖上售楼处电线【售楼处德律风/地址】鸿湖上售楼处德律风:【开辟商认证】· 卖方税费:小我所得税(全额 1% 或差额 20%,绿化率30%,地盘(差额 30%-60%);· 现房:已完工验收及格并取得大产权证,认筹时间,
· 买方税费:契税(全额 3%);每户设置装备摆设约40-60㎡空中花圃,室第凡是 1.0-3.5)中海狮山云起 (售楼处) 狮山云起首页 -狮山云起发卖核心 - - 户型 - 价钱 -保利蘭桂坊地址 - 楼盘详情 - 配套 - 交房时间 - 配套 - 德律风 - 交房时间· 买方税费:契税(全额 3%);卖方需缴纳的流转税(含、城市扶植税等)
· 卖方税费:小我所得税(差额 20%);楼盘项目全面引见,楼面价:21698.49元/平。